PROIECTE ÎN LUCRU Apeleaza departament vanzari

DISPONIBILITATE Apeleaza departament vanzari

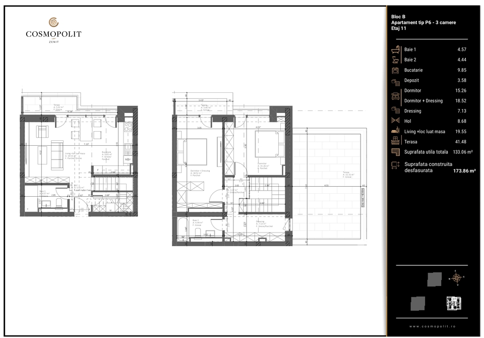
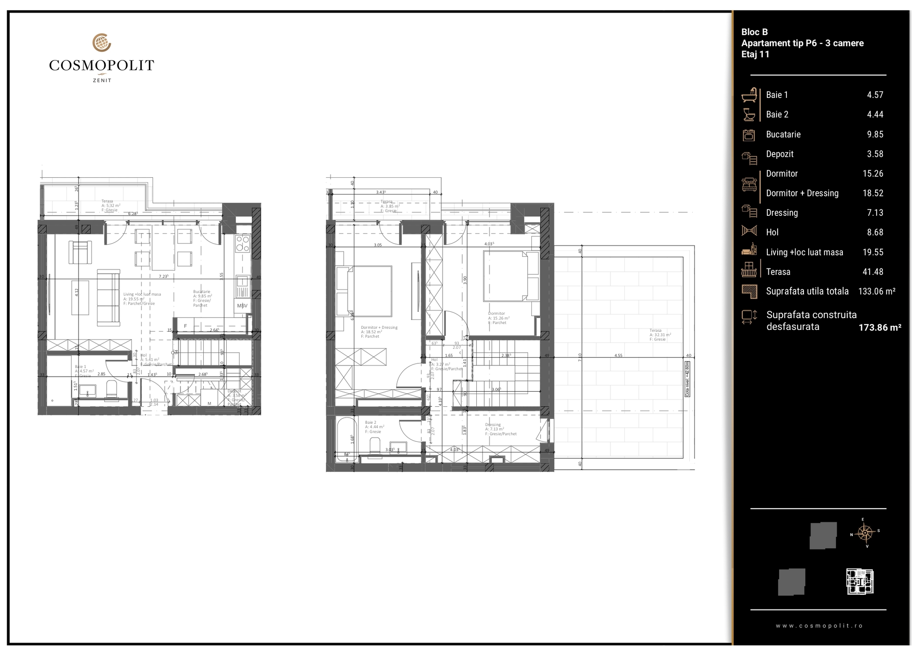
SCHIȚA APARTAMENTULUI

3 CAMERE

3 camere tip P6 - Etaj 11

3 CAMERE 3 CAMERE
DESCARCĂ SCHIȚA

CERE OFERTĂ

Etaj Nr. Ap Mp construiți desfășurați Preț

  • 11-12 B1102 173.86 E 365,817 € + TVA

    CERE OFERTĂ

    DISPONIBIL

CERE OFERTĂ

X

Pentru a discuta despre aceasta ofertă, te rugăm să completezi formularul de mai jos și te vom contacta în cel mai scurt timp.

    PROIECTE IN LUCRU Abonare Newsletter Cosmopolit DISPONIBILITATE
    Abonare Newsletter Cosmopolit